Артикул:
PRIME EXPORT
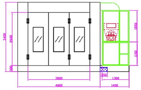
Покрасочная камера PRIME EXPORT со стандартными техническими характеристиками, термовентиляционный блок с приточным и вытяжным вентиляторами, производительностью 21000 м.куб./час. Классический профиль окрасочного бокса: вертикальные стеновые панели до верхнего пояса освещения. Вверху наклонные панели со встроенными светильниками, нижний пояс освещения.
Сертификат EAC (декларация таможенного союза о соответствии ТС № RU Д-CN.АГ03.В.60267)


Плоские стеновые панели на всю высоты камеры, наполнитель - пенополистирол. Отдельная дверь для персонала. Полностью решетчатый пол. Камера поставляется с металлическим основанием, без въездных трапов. Установка в приямок глубиной 300 мм, либо на ровный бетон пол (требуется доукоплектация въездными трапами). Покрасочная камера, укомплектованная вентиляционными и вытяжными блоками, теплогенераторным блоком с итальянской горелкой Riello, двумя рядами осветительных приборов, устройствами, обеспечивающими безопасность
Камера PRIME EXPORT конструктивно отвечает всем необходимым стандартам безопасности и обеспечивает оптимальные условия для покраски продукции, включая крупногабаритное оборудование, автомобили, запасные части.
Камера с усиленным освещением и теплообменником.10 светильников в верхнем ряду освещения, 8 - в нижнем ряду, теплообменник с двойным радиатором для эффективного теплосъема - идеально подходит для Российских условий. Стандартные размеры окрасочного бокса на металлическом основании, въездные ворота и сервисная дверь, четыре уровня фильтрации воздуха, термовентиляционная группа с приточными и вытяжным вентиляторами, полностью решетчатый пол. Оборудование производиться на современной производственной линии.
Технические преимущества PRIME EXPORT
За счет продуманной конструкции и применению качественных материалов камера обеспечивает высокий класс защиты для операторов и производства в целом:
• Камера создает замкнутое, практически герметичное пространство, благодаря этому, в окружающее пространство не попадают пары растворителей и окрасочный туман. Стеновые панели из пенополистирола обеспечивают высокую теплоизоляцию, не впитывают влагу, не гниют и не поддерживают горение. Дополнительная прочность панелей достигается установкой в панель металлических профилей. Такая конструкция панелей обеспечивает жесткость корпуса камеры, предотвращает деформирование камеры.
• Внутреннее пространство покрасочной камеры также изолировано от внешних неблагоприятных факторов, а с учетом эффективной системы фильтрации входящего воздуха, в покрасочной камере создаются оптимальные условия для нанесения ЛКМ: обеспыленный и нагретый до необходимой температуры воздух, движущийся с необходимой скоростью.
• Эффективная система вентиляции обеспечивает безопасную концентрацию опасных для здоровья веществ внутри покрасочной камеры.
• В камере используются только закаленные стекла, которые не подаются влиянию высоких температур в процессе этапа сушки.
Для создания улучшенных условий работы камера снабжена:
• Светильниками в нижнем ряду.
• Полностью решетчатым полом
• Вытяжным вентилятором для организации эффективного вентилирования покрасочной камеры выведения загрязненного воздуха.
• Программатором, задающим время, температуру процессов в камере.
• Переключателем режимов работы камеры.
• Отдельной дверью для входа маляра.
• Автомобильная окрасочно – сушильная камерам (ОСК) состоит из следующих основных частей: окрасочного бокса, теплогенераторного блока, блока приточных вентиляторов, блока вытяжного вентилятора, пульта управления.
• Для окраски и сушки изделий в камере, в ней предусмотрено несколько режимов работы, управление которыми осуществляется с пульта управления камеры. Основные режимы работы камеры: режим вентиляции, режим окраски, режим сушки, а также промежуточные режимы: продувки между окраской и сушкой, и охлаждения.
• Режим вентиляции – предпусковой режим: включены вентиляторы, горелка не работает. Для контроля работы вентиляторов
• Режим краски – предназначен для окраски деталей или автомобиля целиком.
• Рекомендуемая температура режима 20-22С.
• Режим продувки – промежуточный, предназначен для удаления паров растворителей из камеры перед режимом сушки.
• Режим сушки – предназначен для сушки ЛКМ в соответствии с заданной температурой и заданным временем.
• Режим охлаждения – предназначен для плавного снижения температуры после сушки.
Технические характеристики покрасочной камеры PRIME EXPORT
| Наружные размеры камеры, мм | 7000x5400x3400 |
| Внутренние габариты камеры, мм | 6900х3900х2650 |
| Максимальная мощность горелки, кВт | 213 |
| Номинальный воздушный поток, м³/час | 21000 |
| Полностью решетчатый пол | + |
| Металлическое основание | + |
| Ворота 3-х створчатые, мм | 3000х2600 |
| Суммарная мощность светильников, Вт | 1728 |
| Кол-во и мощность светильников верхнего ряда освещения, Вт | 10x(4х36) = 1440 |
| Кол-во и мощность светильников нижнего ряда освещения, Вт | 8х(2х18) = 288 |
| Мощность двигателя вытяжного вентилятора, кВт | 5,5 |
| Горелка G20 | одноступенчатая |
| Мощность двигателя приточного вентилятора, кВт | 3х2 |
| Мощность двигателя вытяжного вентилятора, кВт | 5,5 |
| Масса, кг | 3500 |
• Корпус камеры - стены из плоских сэндвич панелей толщиной 50 мм, наполнитель пенополистирол, гальванизированные панели крыши
• Въездные ворота, сервисная дверь - 3-х створчатые въездные ворота 3000х2600мм, сервисная дверь в боковой панели 800х2000мм, все двери с закаленными стеклами 5мм


Отзывы
Оставить отзыв
Загрузка отзывов...
Вы можете воспользоваться одним из следующих вариантов оплаты:
- Оплата наличными. Мы принимаем наличные деньги (только рубли) через кассовый фискальный аппарат.
- Безналичный расчет для юридических и частных лиц.
- Оплата банковской картой. Оплата происходит через ПАО СБЕРБАНК с использованием Банковских карт следующих платежных систем: VISA, VISA Electron, Maestro, MasterCard, МИР
Товар можно получить одним из следующих способов:
- Самовывоз товара с пункта выдачи по адресу в вашем городе.
- Курьерская доставка с 9-00 до 23-00 по рабочим дням. Покупатель обязуется разгрузить оборудование собственными силами и в кратчайшие сроки. Простой автомобиля оплачивается отдельно.
- Доставка одной из следующих транспортных компаний: "ПЭК" (Первая Экспедиционная Компания), "ЖДЭ" (ЖелДорЭкспедиция), "ЭНЕРГИЯ", "ДЕЛОВЫЕ ЛИНИИ", "СДЭК" и другие.

